A password will be e-mailed to you
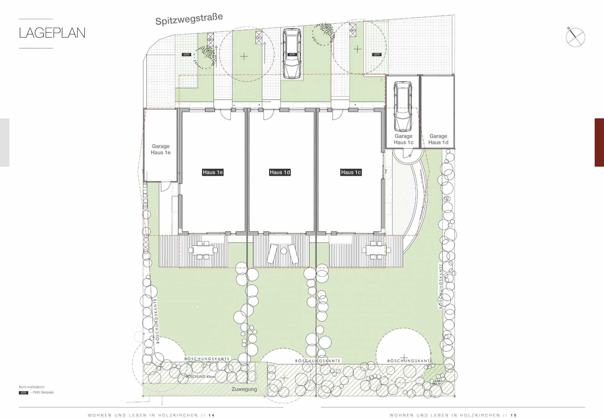
Umgeben von Feldern, Wiesen und Wäldern entstehen in Holzkirchen drei moderne, familienfreundliche Reihenhäuser in zentraler und zugleich ruhiger Ortsrandlage. Die neue Bebauung überzeugt durch ihre außergewöhnlich attraktive Lage: Bahnhof, Schulen, Kindergärten, Spielplatz, Schwimmbad und Fußballplatz sind in wenigen Minuten bequem zu Fuß erreichbar. Damit verbindet der Standort kurze Wege im Alltag mit einem hohen Maß an Lebensqualität. Besonders hervorzuheben ist die unverbaute Südausrichtung am Ortsrand. Ein idyllischer Wander- und Spazierweg beginnt direkt vor der Haustür und lädt zu gemeinsamen Aktivitäten in der Natur ein. Im Winter erreichen Sie Schlittenberg und Langlaufloipe ebenfalls fußläufig – ideal für aktive Familien. Diese Lage vereint ruhiges Wohnen, naturnahes Leben und eine hervorragende Infrastruktur auf harmonische Weise – ein Zuhause, in dem sich Familien langfristig wohlfühlen werden. Die Häuser werden in behaglicher und gesunder Ziegelbauweise errichtet. Bei allen Häusern wird das Dachgeschoss inkl. des Duschbades komplett ausgebaut. Weitere Highlights sind eine Fußbodenheizung in allen Räumen, pflegeleichte Kunststofffenster und Innenfensterbänke aus Naturstein. Die Kalt-/Warmwasser-und Zirkulationsleitungen werden in Edelstahl ausgeführt. ENERGIE: Endenergie 17,2 kWh (m²a) A+, Primärenegie 31,0 kWh (m²a) Die Gemeinde Holzkirchen liegt etwa 30 km südlich von München an der Autobahn A8 Richtung Salzburg. Mit der S-Bahn-Linie S 3 gelangt man in etwa ECKDATEN KURZE BAUBESCHREIBUNG: HAUS: – Innenputz: Wohnetagen + Hobbyraum: geglätteter Maschinenputz – AUSSENANLAGEN: – ERSCHLIEßUNG: BAUBEGINN: Frühjahr 2026
Weiterhin gehören zur Ausstattung elektrisch betriebene Rollläden, eine energieeffiziente Luft-Wasser-Wärmepumpe sowie eine kontrollierte Wohnraumlüftung
inkl. Wärmerückgewinnung. Auch wird ein Kamin für die Nutzung eines geschlossenen Kaminofens eingebaut.
40 Minuten zum Marienplatz. In ca. 25 Minuten erreicht man mit der Bayerischen-Regional-Bahn (BRB) den HBF München und den Tegernsee oder mit dem
Meridian in einer Dreiviertelstunde Rosenheim. Die beliebten Naherholungsgebiete Bad Tölz, Lenggries, Tegernsee, Schliersee und die nahen Berge sind so
schnell und bequem erreichbar. Sechs MVV-Buslinien verbinden die benachbarten Ortschaften miteinander und Ortsbuslinien sorgen für ausgezeichnete Mobilität
innerhalb der Gemeinde.
EINE AUSGEZEICHNETE IN FRASTRUKTUR Ganz gleich ob Discounter, Supermarkt.oder Bäcker: In Holzkirchen. hat man ein sehr gut sortiertes
Angebot an Einkaufsmöglichkeiten. Jeden Mittwoch und Samstag werden zudem auf dem Wochenmarkt am Marktplatz regionale Produkte
angeboten. Vor Ort gibt es zwei Grundschulen (eine mit Ganztagesschule), mehrere Kindergärten, Kindertagesstätten, Horte sowie Einrichtungen für Mittags- und Hausaufgabenbetreuung. Für die Älteren stehen eine Mittel- und Realschule sowie zwei Gymnasien bereit. Ärzte unterschiedlicher
Fachrichtungen, Heilpraktiker und mehrere Apotheken sorgen in Holzkirchen darüber hinaus für eine vorbildliche Gesundheitsversorgung.
– Realteilung der Grundstücke
– Reihenmittelhaus mit Südausrichtung
– voll unterkellert
– konventionelle Massivbauweise
– Satteldach, Dachraum voll ausgebaut
– eine Garage und ein Stellplatz je Haus
– nach GEG Standard (ehem. Effizienzhaus 55)
– Bodenplatte: Stahlbeton
– Außenwände Keller: Stahlbeton, Umfassungswände: Wärmedämmziegel d= 36,5 cm
– Innenwände: Ziegelmauerwerk oder Stahlbeton je nach Statik
– Kommuntrennwände: zweischalige Haustrennwand aus Mauerwerk
– Nichttragende Innenwände: Ziegelmauerwerk
– Decke: Stahlbetonmassivdecken
– Kamin: 1 zügig mit Thermo Luftzug zur Nutzung eines Ofens
– Lichtschächte: als U-förmige Stahlbetonfertigteile
– Eingangs-Vordach:
– Dachkonstruktion: Holzbalkendachstuhl mit Dachschalung
– Wärmedämmung: Außenkellerwände sowie Stahbetonteile werden wärmegedämmt
– Schallschutz: schwimmender Zementesstrich mit Trittschalldämmung
– Außenfassade: weiss eingefärbert, mineralischer, zweilagiger Putz
– Fenster: UG mit PVC Fenstern in weiss,
– Fenster: Wohnetagen PVC im Farbton RAL außen grau, und innen weiß, Dreifachisolierverglasung
– elektrische Kunststoffrollläden
– Innenfensterbänke: Naturstein
– Innenputz: Keller: gemauerte Wände gefilzter Maschinenputz,
– Dachetage: Gipskartonverkleidung der dachschrägen
– Dachgeschoss: Verkleidung mit Gipskarton platten
– Türen: farbig lackierte Hauseingangstür in Holz
– Hausinnentüren: Gefälzte Röhrenspantürblätter in weiss
– Estrich: Kellergeschoss: schwimmender Zementestrich inkl. Dampfsperre
– Estrich: EG bis DG, schwimmender Zemetestrich
– Fliesen: in den Bädern und im UG, EG im Dielenbereich
– Bodenbeläge: EG, OG und DG. Fertigteilparkett
– Innentreppen: KG_DG, Zweihol,holtreppe mit weiß lackierten Wangen
– Malerarbeiten: in weiss
– Schlosserarbeiten in Stahlkonstruktion
– Heizung: Luft-Wasser-Wärmepumpe (Fußbodenheizung)
– Trinkwasserleitungen: Edelstahlrohre, Warmwasserleitung: zirkulierend
– wahlweise Fertigbetongarage oder konventionelle Massivbauweise gemäß Auswahl des Bauträgers
– Belagsflächen: Plattenbelag für Terrassen und Zugänge aus Betonplatten
– Gartenfläche: mit Rasensaat, Maschendrahtzäune zwischen den Grundstücken, 80 cm hoch
– Müllboxen aus Beton
– Häuser werden an die öffentlichen Leitungsnetze angeschlossen
– diese sind: Kanal, Wasser, Strom, Telefon und ggf. Kabel Deutschland
ENERGIE: Endenergie 17,2 kWh (m²a) A+, Primärenegie 31,0 kWh (m²a)

[/bsf-info-box]